| 価格 | 4,298万円値下がり ![]() |
||||
|---|---|---|---|---|---|
| 所在地 | 埼玉県さいたま市見沼区大字笹丸
この地域周辺の物件を見る |
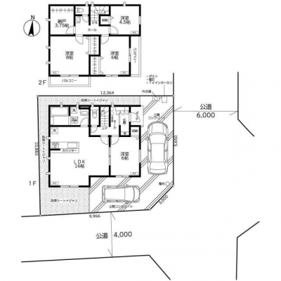
土地面積 | 179.07m² (54.17坪) | 建物面積 | 98.75u |
| 築年月 | 2025年10月築 | 間取り | 3LDK (-) | ||
| 交通 |
JR京浜東北・根岸線 大宮 バス27分 停歩4分
JR京浜東北・根岸線 北浦和 バス26分 停歩10分 |
||||
電話をかける(携帯・PHS可)
0120-279-100
「ホームページを見た」とお伝え下さい。
お問い合わせ番号をお伝えください
RHS--R4193683039
| 特徴 |
|
|---|---|
| セールスコメント | 02074053−1 弊社HPで高画質な図面をダウンロード可能 ※東側隣地の雨どいの一部が越境しております。(覚書あり) 「耐震等級3」、「断熱等性能等級5」、「一次エネルギー消費量等級6」取得予定!※物件完成後に取得予定。地震に強く、冷暖房のエネルギー消費が少ない住まいです。高品質低コストを追求した分譲住宅。 |
| 採光面 | - | 構造/階数 | 木造/地上1階建 |
|---|---|---|---|
| 建ぺい率 | 60(%) | 容積率 | 200(%) |
| 駐車場 | 有 | 現況/引渡し | 新築/2025年11月下旬 |
| 土地権利 | 所有権 | 私道負担面積 | - |
| 接道状況 | - | 用途地域 |
-
|
| セットバック | - | 法令上の制限 | - |
| 地目 | 山林 | 地勢 | |
| 建築確認番号 | 第25UDI1W建03687号 | 都市計画 | 市街化調整区域 |
| 取引態様 | 仲介 | ||
| 情報更新日 | 2025年11月14日 | 次回更新日 | 2025年11月28日 |
| 小学校区 | さいたま市立片柳小学校 (埼玉県さいたま市見沼区) この学区の他の物件を見る |
中学校区 | 浦和中学校 (埼玉県さいたま市浦和区) この学区の他の物件を見る |
|---|
電話をかける(携帯・PHS可)
0120-279-100
「ホームページを見た」とお伝え下さい。
お問い合わせ番号をお伝えください
RHS--R4193683039
| 価格 | 万円 | ||
|---|---|---|---|
| 年利率 | % |
||
| ボーナス払い | 返済年数 | ||
| 頭金 | 直接入力する | 万円 | |

毎月のご返済額 |
ボーナス(×年2回) |
物件価格4,298万円 |
電話をかける(携帯・PHS可)
0120-279-100
「ホームページを見た」とお伝え下さい。
お問い合わせ番号をお伝えください
RHS--R4193683039

物件価格から検索
月々返済額から検索
-