| 価格 | 800万円 ![]() |
||||
|---|---|---|---|---|---|
| 所在地 | 埼玉県さいたま市岩槻区大字飯塚
この地域周辺の物件を見る |
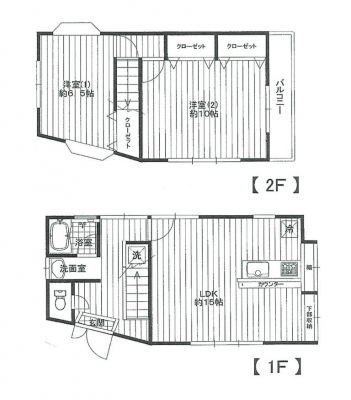
土地面積 | 88.21m² (26.68坪) | 建物面積 | 75.34u |
| 築年月 | 1988年8月築 | 間取り | 2LDK (LDK15) | ||
| 交通 |
東武野田線 岩槻 バス11分 停歩9分
|
||||
電話をかける(携帯・PHS可)
0120-279-100
「ホームページを見た」とお伝え下さい。
お問い合わせ番号をお伝えください
RHS--R2427989099
| 特徴 |
|
|---|---|
| セールスコメント | 現況優先、契約不適合責任免責 セットバック区分:無 告知事項あり。2024年12月浴室にて孤独死 購入にあたっては都市計画法第42条の用途変更許可が必要となります。 再建築にあたっては都市計画法第43条による建築許可が必要です。 |
| 採光面 | - | 構造/階数 | 木造/地上2階建 |
|---|---|---|---|
| 建ぺい率 | 60(%) | 容積率 | 200(%) |
| 駐車場 | 有 | 現況/引渡し | 空家/相談 |
| 土地権利 | 所有権 | 私道負担面積 | - |
| 接道状況 | 接道: 西 22.6m 公道 道路幅: 7.8m | 用途地域 |
-
|
| セットバック | - | 法令上の制限 | - |
| 地目 | 宅地 | 地勢 | 平坦 |
| 建築確認番号 | 都市計画 | 市街化調整区域 | |
| 取引態様 | 仲介 | ||
| 情報更新日 | 2025年11月14日 | 次回更新日 | 2025年11月28日 |
| 小学校区 | さいたま市立城南小学校 (埼玉県さいたま市岩槻区) この学区の他の物件を見る |
中学校区 | 浦和中学校 (埼玉県さいたま市浦和区) この学区の他の物件を見る |
|---|
電話をかける(携帯・PHS可)
0120-279-100
「ホームページを見た」とお伝え下さい。
お問い合わせ番号をお伝えください
RHS--R2427989099
| 価格 | 万円 | ||
|---|---|---|---|
| 年利率 | % |
||
| ボーナス払い | 返済年数 | ||
| 頭金 | 直接入力する | 万円 | |

毎月のご返済額 |
ボーナス(×年2回) |
物件価格800万円 |
電話をかける(携帯・PHS可)
0120-279-100
「ホームページを見た」とお伝え下さい。
お問い合わせ番号をお伝えください
RHS--R2427989099

物件価格から検索
月々返済額から検索
-